17245000 20241218 8 Small

De remontabele woning

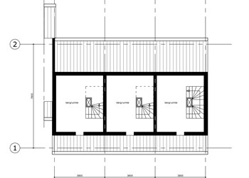
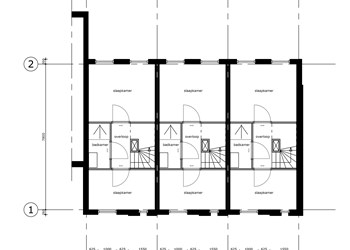
In de wijk Hillekensacker in Nijmegen zijn 3 remontabele woningen gerealiseerd in opdracht van woning corporatie Woonwaarts. Het betreft een pilot van een innovatief woningbouwconcept (Tardis innovations) wat in enkele dagen op locatie 'geassembleerd' is. Alle afzonderlijke bouwdelen zijn prefab en zijn aan het einde van de levensduur weer van elkaar te scheiden (losmaakbaar). Dit maakt dat ze gemakkelijk kunnen worden hergebruikt of hoogwaardig gerecycled. Het concept streeft naar maximale efficiëntie in tijd, kosten en materiaalgebruik middels vergaande industrialisering van het bouwsysteem. Innovatieve producenten dragen met hun producten bij aan het realiseren van een minimale CO² impact met behoud van kwaliteit. 

Croes is verantwoordelijk geweest voor de architectuur, de constructieve advisering en bouwkundige uitwerking. Betrokken partners zijn o.a. VBI, Voorbij beton, Hoppenbrouwers Techniek en Lagemaat B.V. 

  • Type project
    Wonen
  • Plaats
    Nijmegen
  • Opdrachtgever
    Tardis Innovations
  • Ontwerp
    Croes Bouwtechnisch Ingenieursbureau